House Team Nieruchomości i Finanse zaprasza do zapoznania się z ofertą sprzedaży lokalu handlowo-usługowego w centrum Bydgoszczy.
Lokal znajduje się na tyłach kamienicy przy ulicy Dworcowej u zbiegu z ulicą Królowej Jadwigi.
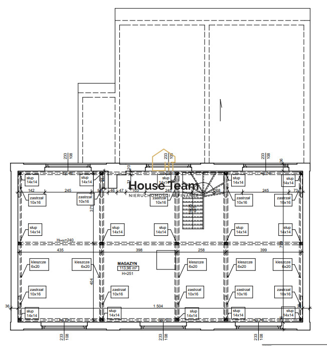
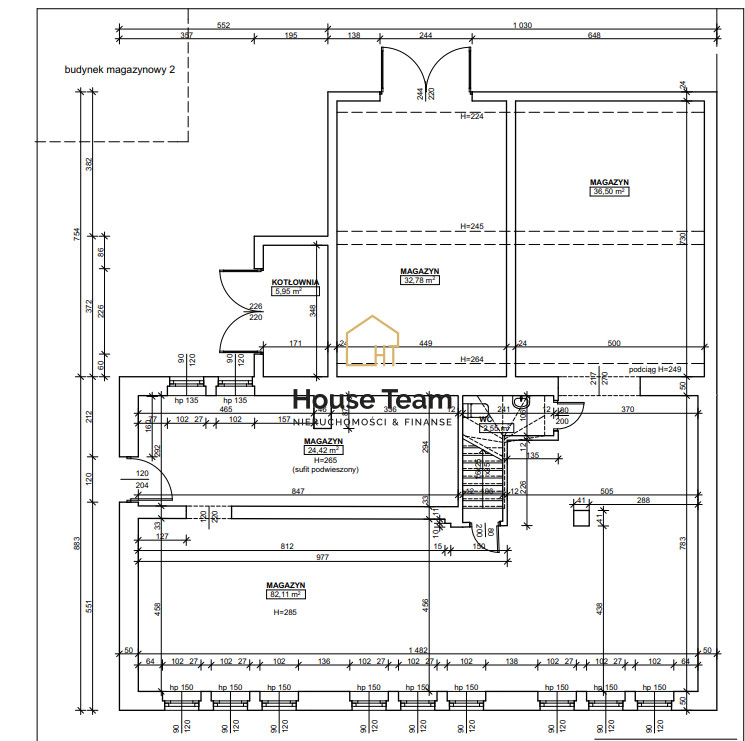
Powierzchnia użytkowa ok 300m2. z czego ok 180 m2 na paterze i 120 na piętrze.
Wysokość od 260 cm do 290 cm.
W budynku mieściła się do tej pory firma produkcyjna ( drukarnia ) oraz hurtownie i magazyny.
Do budynku przynależy miejsce parkingowe na wewnętrznym dziedzińcu kamienicy.
ATUTY:
- idealne na usługi lub cichą produkcję
- lokalizacja w samym centrum Bydgoszczy
- do własnej aranżacji
- cena 2800 zł / m2
STANDARD:
Budynek wykonany w technologii tradycyjnej z cegły w dobrym stanie technicznym i wizualnym. Wszystkie instalacje w budynku lub przyłącza w obrębie.
LOKALIZACJA:
Śródmieście u zbiegu ulicy Dworcowej i Królowej Jadwigi - bardzo dobry i szybki dojazd do każdego punktu miasta.
W bliskiej odległości szkoły, przedszkola, Centrum Rekreacji Astoria, markety, punkty usługowe, przystanki autobusowe i tramwajowe.
Zapraszam na prezentację tej unikalnej nieruchomości.
Klucze w biurze.
Naszym Klientom pomagamy na każdym etapie transakcji, oferujemy również bezpłatną pomoc w uzyskaniu kredytu hipotecznego.
850 000,00 PLN (2 833,33 PLN)
Śródmieście 300m2 budynek handlowo-usługowy
Lokal handlowy/usługowy na sprzedaż,
Bydgoszcz, Dworcowa
Dane szczegółowe
- Typ transakcji: sprzedaż
- Typ nieruchomości: Komercyjny
- Lokalizacja: Bydgoszcz Centrum, Dworcowa
- Powierzchnia:300 m2
- Liczba pokoi: 6
- Rok budowy: 1930
- Piętro: 1 z 1
- Numer oferty: 566870
- Cena: 850 000,00 PLN
- Cena za m2: 2 833,33 PLN
Kontakt z agentem: House Team Nieruchomości & Finanse
Marcin Głowacki
Opis nieruchomości
Mapa
Kontakt z agentem
House Team Nieruchomości & Finanse